The Hartwell
The Hartwell
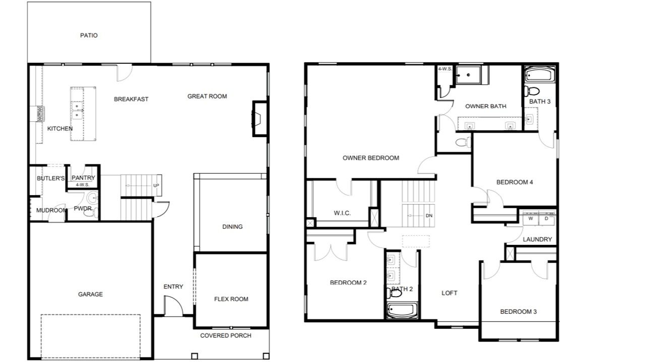
Home Description
Our Hartwell plan offers 2,783 square feet, 4 bedrooms, and 3.5 bathrooms.
- Open kitchen & great room with fireplace
- Kitchen offers Samsung stainless steel appliances, large center island, granite countertops, breakfast area, walk-in pantry & butler's pantry
- Formal dining room and flex room
- All bedrooms on second floor
- Owner's suite with large bathroom & WIC
- Guest suite with personal bathroom
- Laundry room on second floor
- Front and back patio with optional cover & fireplace
Send A Message
Please provide your name, contact details and a message.
